Проект дома шале Ш-711
1 754 900 руб.
Арт. Ш-711
Уютный дачный коттедж в альпийском стиле шале с тремя спальнями, гостиной, кухней, санузлом и верандой.
Варианты стен:
Подробнее
Варианты стен:
- Брус 45мм - 1 754 900 р.
- Брус 60мм (неклееный) - 2 824 400 р.
- Брус 80мм (клееный) - 3 608 100 р.
Характеристики
Назначение
—
для отдыха
Количество спален
—
5+
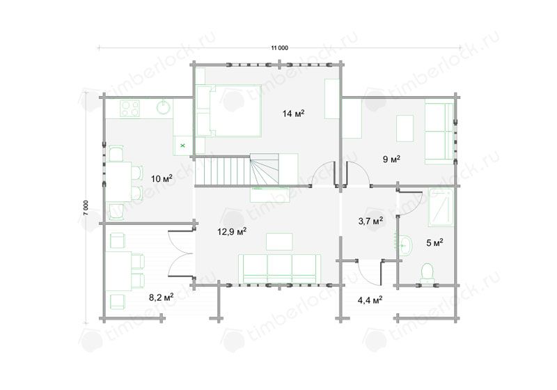
Размеры
—
11 х 7 м
Площадь
—
80.8
Длина конька
—
7м
Этажей
—
2
Цена действительна только для интернет-магазина и может отличаться от цен в розничных магазинах
Проект дома шале Ш-711
1 754 900 руб.
Арт. Ш-711
В стоимость входит:
|
Отдельные опции
|
Характеристики
Назначение
для отдыха
Количество спален
5+
Размеры
11 х 7 м
Площадь
80.8
Длина конька
7м
Этажей
2
Гараж
без гаража
Чтобы приобрести понравившийся товар, необходимо его заказать. Есть несколько сценариев того, как это можно сделать.
- Выбрать понравившийся товар и нажать кнопку «Заказать». При оформлении заказа заполнить форму. Вписать информацию в поля: ФИО, телефон и e-mail. Затем вам перезвонит менеджер, чтобы подтвердить ваше согласие на совершение покупки.
- Выбрать понравившийся товар и нажать кнопку «В корзину». Затем перейти в корзину и нажать «Оформить заказ». Далее заполнить форму с контактными данными и отправить заявку. С вами свяжется менеджер для дальнейшего обсуждения.
- Перейти в карточку товара и нажать «Купить в один клик». После нажатия нужно заполнить форму и отправить заявку. С вами свяжется менеджер для дальнейшего обсуждения.
Мы работаем с физическими и юридическими лицами. И предоставляем сразу два варианта оплаты.
- Наличные. Вы подписываете товаросопроводительные документы, расплачиваетесь денежными средствами, получаете товар и чек.
- Безналичный расчет. Принимаем карты Visa и MasterCard. Доступен при курьерской доставке.
Ваш заказ можем доставить собственными ресурсами, при условии вашего нахождения в городе. Либо через 4 варианта доставки:
- Курьерская доставка. Курьерская доставка работает с 9:00 до 19:00. Когда товар поступит на склад, курьерская служба свяжется для уточнения деталей. Специалист предложит выбрать удобное время доставки и уточнит адрес.
- Самовывоз из магазина. Для получения заказа обратитесь к сотруднику в кассовой зоне и назовите номер.
- Сотрудничаем с постаматами. Срок хранения — 3 дня.
- Предоставляем почтовую доставку через почту России. Когда заказ придет в отделение, на ваш адрес придет извещение о посылке. Вскрывать коробку самостоятельно вы можете только после оплаты заказа.
Дополнительная вкладка для размещения информации о товарах, доставке или любого другого важного контента. Поможет вам ответить на интересующие покупателя вопросы и развеять его сомнения в покупке. Используйте её по своему усмотрению.
Вы можете убрать её или вернуть обратно, изменив одну галочку в настройках компонента. Очень удобно.
Фотогалерея
1/5
—
